Проект «Ф14» | HOUSE-STROY 35 - Строительство комфортных домов

Проект «Ф14»

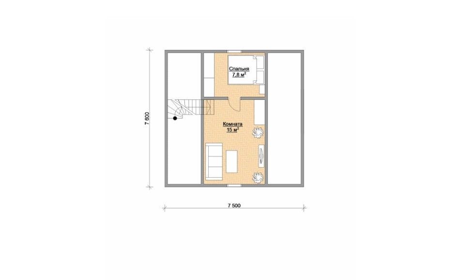
О проекте
Площадь дома
71 м²
Количество этажей
2
Количество спален
2
Количество санузлов
1
Терраса
есть
Стоимость
Каркасные дома
от 1 384 500 ₽
Клееный брус
от 3 081 400 ₽
Профилированный брус
от 2 804 500 ₽
Хотите построить дом?
Свяжитесь с нами!

Нажимая на кнопку, вы даете согласие на обработку персональных данных

feadback_mini Маленькая форма обратной связи

Что входит в комплектации

Комплектация Коробка дома
от 19 500 руб. за м2
Теплый контур
 от 25 500 руб.за м2
Предчистовая
 от 39 000 руб. за м2
Чистовая
 от 44 550 руб. за м2
Фундамент сваи
Несущая конструкция каркасно-щитовая система
Наружная отделка имитация брус
Кровля металлочерепица
Утепление стен/пол/потолок
Окна пластиковые стандартные
Внутренняя отделка пол/потолок осп плита
Входная дверь с терморазрывом
Наружная отделка имитация бруса
Внутренняя отделка стен имитация брус
Пол/потолок осп плита
Радиаторы
Канализация септик кольца
Водоснабжение колодец
Электромонтажные работы
Вентиляция естественная
Кровля металлочерепица утепление стен/пол/потолок
Пол ламинат
Потолок натяжной
 Итог: 19500 25500 39000 44550
Комплектация Коробка дома от 42000 руб. за м2 Предчистова от 45000 руб. за м2 Чистовая от 51000 руб. за м2
Фундамент сваи
Клееный брус
Утепление пол/потолок
Окна пластиковые стандартные
Внутренняя отделка пол/потолок осп плита
Входная дверь с терморазрывом
Кровля металлочерепица
Радиаторы
Канализация септик кольца
Водоснабжение колодец
Электромонтажные работы
Вентиляция естественная
Пол ламинат
Потолок натяжной
Канализация
Септик кольца
Итог: 42000 45000 51000
Комплектация Коробка дома от 37000 руб. за м2 Предчистовая от 39500 руб. за м2 Чистовая от 45200 руб. за м2
Фундамент сваи
Проф. брус
Утепление пол/потолок
Окна пластиковые стандартные
Внутренняя отделка пол/потолок осп плита
Входная дверь с терморазрывом
Кровля металлочерепица
Радиаторы
Канализация септик кольца
Водоснабжение колодец
Электромонтажные работы
Вентиляция естественная
Пол ламинат
Потолок натяжной
Итог: 37000 39500 45200
feedback

Остались вопросы?

Заполните небольшую форму и наш менеджер свяжется с вами в ближайшее время

Нажимая кнопку, вы соглашаетесь на обработку персональных данных