Проект "Б-29" | HOUSE-STROY 35 - Строительство комфортных домов

Проект «Б-29»

О проекте
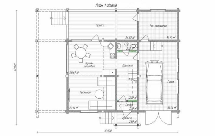
Площадь дома
169.01
Количество этажей
2
Стоимость
Клееный брус
от 7 335 034 ₽
Хотите построить дом?
Свяжитесь с нами!

Нажимая на кнопку, вы даете согласие на обработку персональных данных

feadback_mini Маленькая форма обратной связи

Что входит в комплектации

Комплектация Коробка дома от 42000 руб. за м2 Предчистова от 45000 руб. за м2 Чистовая от 51000 руб. за м2
Фундамент сваи
Клееный брус
Утепление пол/потолок
Окна пластиковые стандартные
Внутренняя отделка пол/потолок осп плита
Входная дверь с терморазрывом
Кровля металлочерепица
Радиаторы
Канализация септик кольца
Водоснабжение колодец
Электромонтажные работы
Вентиляция естественная
Пол ламинат
Потолок натяжной
Канализация
Септик кольца
Итог: 42000 45000 51000
feedback

Остались вопросы?

Заполните небольшую форму и наш менеджер свяжется с вами в ближайшее время

Нажимая кнопку, вы соглашаетесь на обработку персональных данных